小池 康也
Yasunari Koike
CLOSE
CLOSE
BLOG
2022.12.04
小池 康也
Yasunari Koike

前回に引き続き、
『盛岡のフリーダムデザインって、どうですか?』
22 購入経験者さん 2022/02/03
外構をフリーダムデザインを通したら条件同じにしたのに1.
■ご回答
外構工事のコストについての投稿です。
ところで、外構工事って価格がよく分からないと思われませんか?
●住宅会社は外構工事しない
住宅会社では、外構工事って、直接やらないんですよね。
「外構は別に探して下さい!」か、「ご提案します!と言うけど、

●外構屋さんが少ない理由
これは工事金額(利益)の割に、手間がか掛かって大変=
だから、住宅会社はすごく沢山あるのに、外構会社って、
●庭と家は一体が理想
私も以前の勤務先では、
家と庭が別会社だと、
だから、家と庭が別々のものに出来上がってしまう。

本来は、庭と家がそれぞれ融和して、
●暮らしだって、マリアージュ
ワインと食事が引き立て合うことをマリアージュと呼びますが、
名作と言われる住宅は、外(庭)と家が融合しています。元々、

●日本建築の本来は、
障子、縁側なんて、その具体的な装置です。皆さん、
※隈研吾さんの「境界」もそんな本です↓↓↓

●外構は2種類あって
さて、外構工事といっても、随分と幅広いです。
『機能向上外構』カーポート屋根設置、境界フェンス設置、
その他に『暮らし向上外構』もあって、ターフや、ベンチ、

フェンス工事などの機能向上工事なら打合せも最小限ですが、
工事も同様でして、

●暮らし向上の庭は満足感が違う
しかし、出来上がった時のお客様の満足感や感動は、
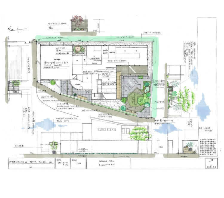
我々が提案するプランは、
※きれいすぎてCADと間違えられますが、手描きです

こんな提案には、ヒアリング力、提案力、

●スローガーデン
我々の様な提案する会社様が少ない事から、
ご指摘の様に、コスト的に価格差があったのは、
それだけ時間をかけて提案をしていますし、

●我々の提案したい庭がある
導入部でもお話ししましたが、
ただ、誤解されやすい実情もあって、
住宅では当たり前の保証制度も、
ですので、金額だけ単純に比較出来ないと思っています。
当初のご説明が不足していた可能性もあるかと思いますので、
CONTACT US
フリーダムデザインの家づくりに興味を持たれた方は、お気軽にご相談ください。