CLOSE
CLOSE
CLOSE
CLOSE
BLOG
2024.05.25
初めまして、今年の4月よりフリーダムデザインで新入社員として働いております。黒沢弥白と申します。
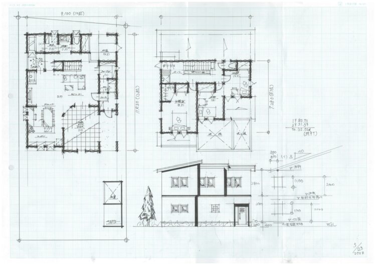
私は設計志望でこの会社に入社したのですが、学校で学んできた内容が、設備中心だったため、住宅の知識があまりありません。そのため、プランの書き方や家具などの大きさを覚えるために毎日1プラン社長のプランをトレースして勉強しています。今日から社長の合格をいただくまで、トレースしたプランをブログに投稿していきたいと思います。

今回トレースしたプランは約40坪のプランです。社長には立面を描く際に、基準となる高さを横に書いてから立面図を描くように教えていただきました。
CONTACT US
フリーダムデザインの家づくりに興味を持たれた方は、お気軽にご相談ください。