Loading...

フリーダムデザイン

MENU

BLOG

毎日トレース生活 3日目 

2024.06.30

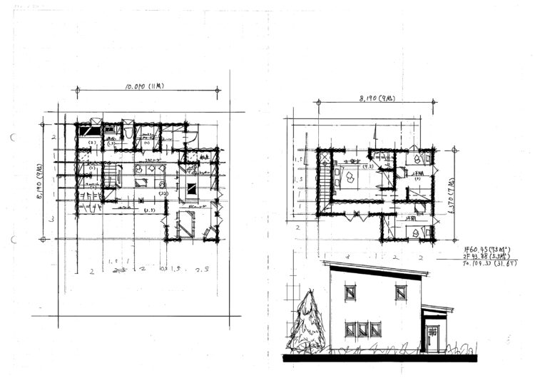
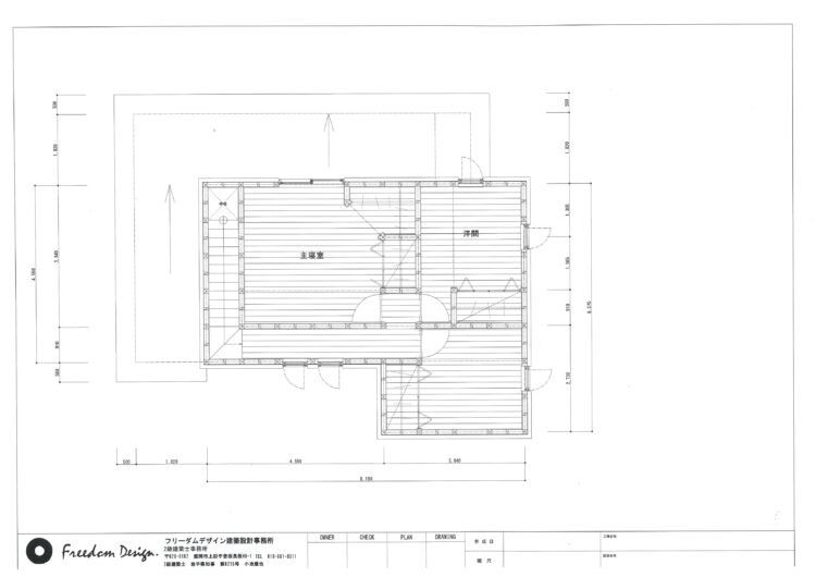
今回は31.6坪のプランをトレース、CAD化まで行いました。

保存の仕方を失敗してCADデータが2Fだけになってしまったので次回以降気をつけたいです。前回の新モデルハウスのCAD作成時よりも速くできたと思うので練習を重ねてもっと使いこなせるようがんばります。

CONTACT US

フリーダムデザインの家づくりに興味を持たれた方は、お気軽にご相談ください。

営業時間:9:00 - 18:00
定休日:毎週水曜日 / 第2・4火曜日 / 第1日曜日 / 祝祭日