- HOME
- ブログ
- freedom-design|岩手山が見える!大型ルーフテラスのある中古マンション
freedom-design|岩手山が見える!大型ルーフテラスのある中古マンション
2020.05.19
フリーダムデザインのお客様のご所有マンションを売出し中です。
お部屋が空室となったので、改めて内見をさせて頂きました。
盛岡市本宮のアートヴィレッジ外観です。
日当たりの良いリビングルーム。
写真は、今回仲介も担当して頂いているリアルビジネス 因幡社長様です。
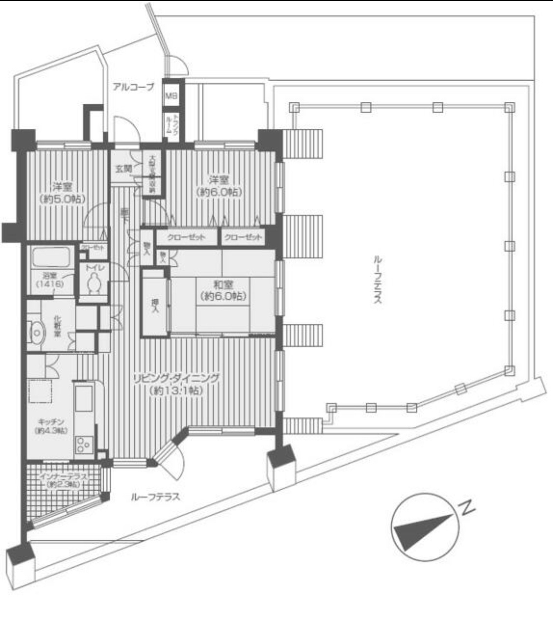
こちらが間取りです。
3LDKに大きなルーフテラスがあります。
最近の巣ごもりにも、ストレスを減らすことが出来そうです。

テラスから東側の眺めです。
盛岡市内一望です。マンションの醍醐味ですね。
岩手の象徴 岩手山がよく見えます。
こちらがリビングルームです。
窓が一面にあって、明るいお住まいです。
こちらがキッチン。
横には、洗濯物を干すサンルームがあります。
地下室には、身体を動かせるファミリーアリーナが共有施設として用意されています。
↓↓ご興味ある方は、こちらをご覧ください↓↓
趣味:ソシアルダンス、パーソナルジムで筋トレ、レイトショーで一人映画鑑賞、美しいものを眺めること