今日は、高低差がある土地に建築される場合の話題です。
最近は、崖が崩れたりの報道が多く、不安がます報道が多いですね。
(兵庫県西宮市の無添加住宅 分譲地。急峻な角度です↓↓↓ それが素敵な街並みを作っています)
◾️安息角=滑らない角度限界
高低差がある敷地条件で話題になるのが「安息角(あんそくかく)」。あまり聞きなれないワードだと思いますが、要は、物が崩れ出さない角度のこと↓↓↓
安息角(あんそくかく)は、滑り出さない限界の角度を表す工学用語である。土質力学・粉体工学や機械工学で用いられており、それぞれの分野での意味が異なる。 Wikipedia
材料による特性もあります。
ちょっと興味深い↓↓↓

一番下に、「土 30-45°」とありますが、つまり「土は30度以下が、崩れない角度」という事になります。これが、安息角です。
30度は、中学校の三角比で習いましたが、こんな高さ関係です↓↓↓
◾️高さの2倍離せれば良いけどね^^;
で結局、住宅規模の崖建築の場合には、「安息角30度を考えて、高さの2倍を離して建築する」が目安となっています。これが「崖条例」と呼ばれるものです↓↓↓

これは、擁壁などを建築しない崖に建築する事例です。大昔と違い、敷地が限定されている現在の建築状況では、擁壁(土留めコンクリート)を作るのが一般的だと思います。
◾️安息角以下に荷重を流す
その場合には、安息角以下まで到達する様に、杭基礎などを施工して、建物荷重を擁壁部にかけないと考えます↓↓↓
地盤条件が良くても、高低差を考えて杭工事をするケースです。

大きくすると、こんなイメージです↓↓↓
安息角下以下に、杭基礎を到達させます。
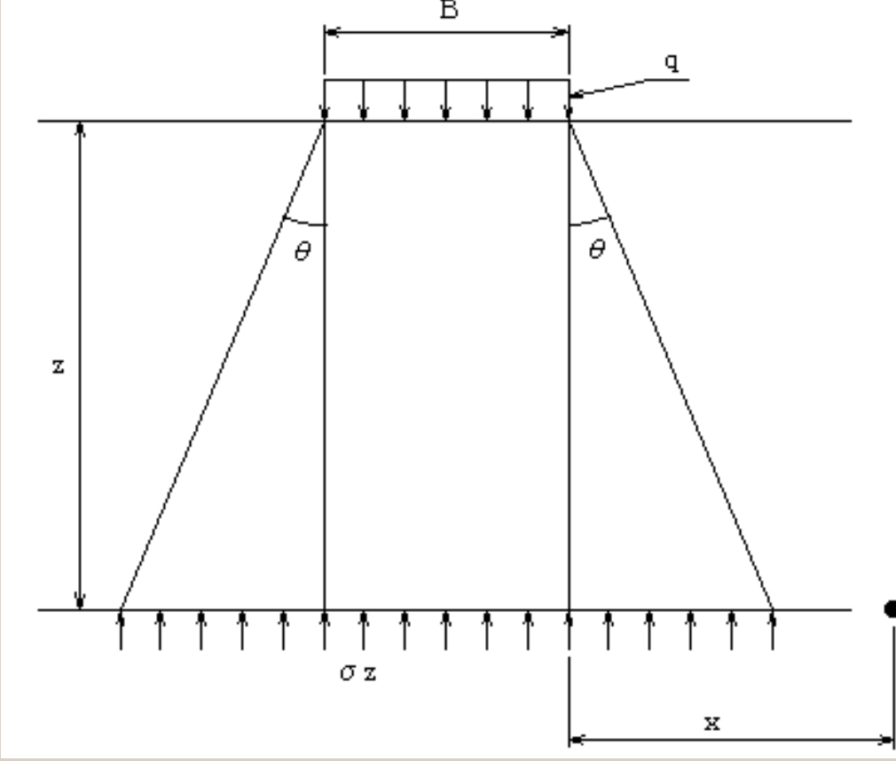
◾️建物荷重はどうなっている?
では、建物荷重は、地盤面以下ではどのようになっているか?は↓↓↓
30度で拡がっていくと考えられます。この図でのθシータが、30度です。
【ボストンコード法】
地表面に載荷した当分布荷重は、ある角度αで直線的に広がる範囲に、一様に分布すると仮定する。
ボストン市建築基準では、α=30度とした方法を用いている(メモ書きで出典不明)
この荷重の考え方は、擁壁の安全性とは異なるものですが、基本的な荷重の考え方として参考となると思います。
◾️崖下の建築は?
さて、盛岡エリアでは、崖上に建築することが注目されることが多いですが、
この崖条例は、崖下の建築も規制されます↓↓↓
詳しい図のイメージは、こんな感じです↓↓↓
崖上からの安息角より下は、基礎などでブロックし安息角以上に建築する、ということですね。
盛岡エリアは、比較的高低差の少ない地域です。弊社の地盤サポート会社様は、全国エリアで展開されていて、「横浜、川崎などの首都圏は高低差は激しくて、
皆さん見たらびっくりしますよ」と話題にして下さいます。
特に地価が高額になってくる首都圏エリアだと、誰も建築イメージ出来ない建築地を、有効利用する事例は目を引きます。
◾️高低差建築なら無添加住宅
無添加住宅 開発者の秋田憲司さんは、崖地のプロフェッショナル。誰も見向きもしない崖地の竹やぶを分譲地にされて、地域不動産屋さんに衝撃を与えたそうです↓↓↓ こちらです。

秋田さんは、天才と尊敬しています。
こちらも同団地内↓↓↓
↑↑↑土留め擁壁に、漆喰を塗って、更にその上にその土地の泥を塗ってあります。
ヨーロッパにいくと、漆喰にその土地の土を混ぜて練り上げて外壁にしています。
だから、街ごとに色が違うのですね。味のある街並み風景になります。
◾️秋田憲司さんの建築群
無添加住宅分譲地を初めて見た時の衝撃の時の投稿です↓↓↓
と、今日は高低差のある土地への建築の話題でした
趣味:ソシアルダンス、パーソナルジムで筋トレ、レイトショーで一人映画鑑賞、美しいものを眺めること